Property Detail

611 Hoag

Corning CA 96021

$299,000

Status: Active

Property Details

Description

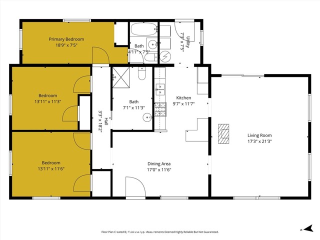
Step into the charm of 1956 with this character-filled home offering a beautiful blend of vintage details and thoughtful updates. From the moment you arrive, the covered front porch invites you to slow down, sit awhile, and enjoy the neighborhood. Inside, you’ll immediately notice the high ceilings throughout, creating an open, airy feel enhanced by the natural light pouring in through large windows. The spacious living room offers plenty of room for gatherings, cozy movie nights, or hosting friends and family. This home showcases a delightful mix of old and new, including charming vintage tile in the second bathroom that adds timeless personality you simply don’t find in modern builds. Outside in the large backyard you will find a nice size storage shed giving you plenty of room to store your toys, back inside you will find the generously sized main bathroom provides both comfort and functionality while the wood-burning stove makes chilly evenings feel warm and inviting. Important updates have already been completed, including a newer roof (approximately five years old) and updated plumbing with PEX in 2023, new water heater 2023, all offering added peace of mind. Situated on a large corner lot, there is room to spread out, garden, entertain, or simply enjoy the extra space and privacy. If you appreciate homes with history, warmth, and unique character, this one is ready to welcome you home.

Map Location

Listing provided courtesy of Jennifer Lewis of HB Ranch and Home Properties, EXP of Northern Ca. Last updated 2026-03-01 09:21:37.000000. Listing information © 2026 CRMLS.

john Doe

Jaime Sanford

DRE# 123456789
Inquire Now
Real estate https://static.royacdn.com/Site-48750597-fad4-4739-909d-ca390a15c8e5/theme1/realtor.jpg realtor # # # https://static.royacdn.com/Site-48750597-fad4-4739-909d-ca390a15c8e5/theme1/realtor.jpg 484 Lake Park Ave., Suite 280 Oakland, CA 94610 2603 Camino Ramon Suite 200 San Ramon, CA 94583 5102250470 9168229655 8183348266