Property Detail

29375 Tourmaline

Winchester CA 92596

$500,000

Status: Active

Property Details

Description

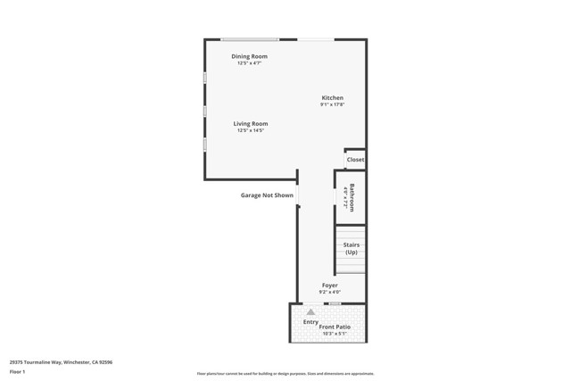
Welcome to this stylish 3-bedroom, 2.5-bath condominium in Copper Skye gated community with two secure private entrances. Nearly 1,400 sq. ft. of thoughtfully designed living space features an open floor plan with vinyl plank flooring, abundant natural light, and quality finishes throughout. The kitchen is a focal point with elegant cabinetry, quartz countertops, and a generous center island ideal for meal prep and gatherings. Custom interior shutters on first-floor mini wall windows add refined detail to the living spaces. A direct connection to your private, eco-friendly patio offers a rare combination of natural grass and low maintenance surfaces perfect for outdoor seating, pets, casual play, grilling, or quiet evenings. Upstairs, the three bedrooms are well-sized with walk-in closets and carpeting, and a conveniently located laundry area with linen closet enhances everyday ease. Included are professionally produced 3D tour, video tour, and floorplan media to showcase flow and spatial relationships. Community amenities include a brand-new resort-style pool and palm-lined common areas maintained by HOA for leisure and social opportunities. The low HOA and tax structure enhances value and convenience. Nearby places for everyday needs and recreation include Winchester-Domenigoni Community Park, Conestoga Park, Lake Skinner Recreation Area, and neighborhood green spaces. Daily errands are supported by nearby French Valley Village Center grocery and retail options, Grocery Outlet, Stater Bros. Markets, Winchester farm market and swap meet, and additional services. This property offers a blend of indoor comfort, outdoor enjoyment, community lifestyle, and proximity to shopping, recreation, and open space, a compelling opportunity in Winchester.

Map Location

Listing provided courtesy of Andrew Lewis of Real Brokerage Technologies. Last updated 2026-03-02 09:13:31.000000. Listing information © 2026 CRMLS.

john Doe

Jaime Sanford

DRE# 123456789
Inquire Now
Real estate https://static.royacdn.com/Site-48750597-fad4-4739-909d-ca390a15c8e5/theme1/realtor.jpg realtor # # # https://static.royacdn.com/Site-48750597-fad4-4739-909d-ca390a15c8e5/theme1/realtor.jpg 484 Lake Park Ave., Suite 280 Oakland, CA 94610 2603 Camino Ramon Suite 200 San Ramon, CA 94583 5102250470 9168229655 8183348266