Property Detail

1166 10th

Chico CA 95928

$617,000

Status: Active

Property Details

Description

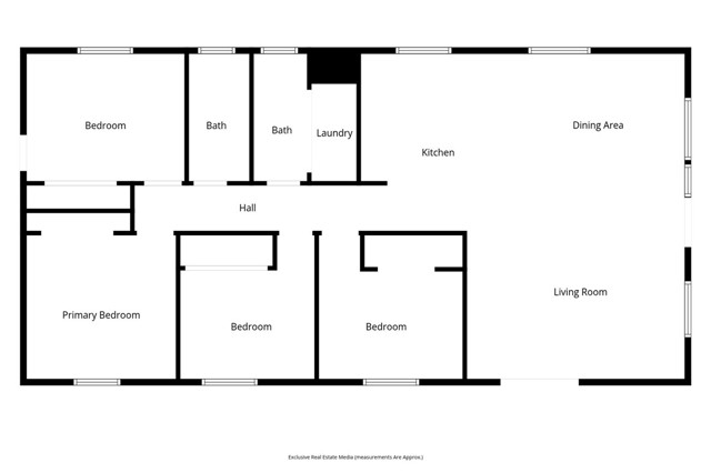
Welcome to 1166 & 1168 E. 10th Street—a fantastic investment opportunity featuring three separate units on one lot! Whether you’re looking to live in the main home while generating income from the additional units, or maximize rental potential with long- or short-term leases, this property offers incredible flexibility—including strong Airbnb possibilities. The front home is full of charm, offering 4 bedrooms and 2 bathrooms with an inviting and thoughtfully designed layout. From the moment you arrive, you’ll love the private front yard shaded by a large tree, complete with a classic picket fence, welcoming front porch, and charming black shutters—truly picture-perfect curb appeal. Inside, the home is light, bright, and open with a spacious living room, vaulted ceilings, and an open kitchen featuring a peninsula island with bar-top seating and a dedicated dining area. Tile flooring runs throughout the main living spaces, with cozy carpet in the bedrooms. All four generously sized bedrooms and two bathrooms are tucked toward the back of the home for added privacy. A full-size washer and dryer are conveniently located inside. The two rear units each feature 1 bedroom and 1 bathroom, with full kitchens including a stove, dishwasher, refrigerator, and microwave. Each unit also includes its own private stackable washer and dryer—ideal for tenants or guests. All three units have been well cared for and show beautifully, making this a turn-key opportunity for investors or owner-occupants.

Map Location

Listing provided courtesy of John Barroso of Parkway Real Estate Co.. Last updated 2026-04-29 08:36:51.000000. Listing information © 2026 CRMLS.

john Doe

Jaime Sanford

DRE# 123456789
Inquire Now
Real estate https://static.royacdn.com/Site-48750597-fad4-4739-909d-ca390a15c8e5/theme1/realtor.jpg realtor # # # https://static.royacdn.com/Site-48750597-fad4-4739-909d-ca390a15c8e5/theme1/realtor.jpg 484 Lake Park Ave., Suite 280 Oakland, CA 94610 2603 Camino Ramon Suite 200 San Ramon, CA 94583 5102250470 9168229655 8183348266