Property Detail

54506 Marian View

Idyllwild CA 92549

$454,000

Status: Active

Property Details

Description

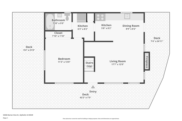
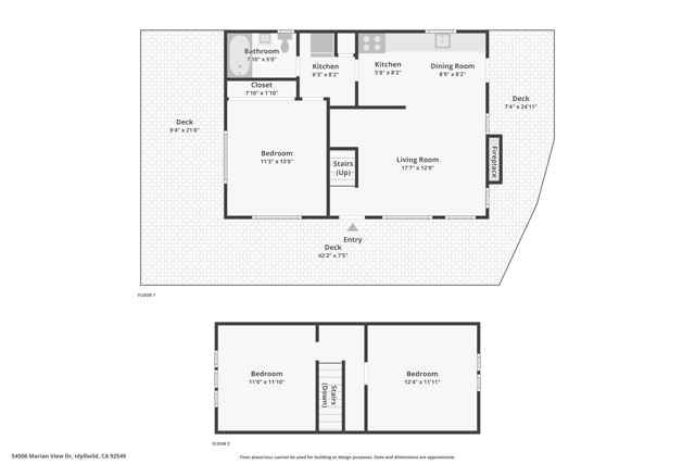
Step into timeless mountain charm with this beautifully preserved 1958 cabin, ideally located right in the heart of downtown Idyllwild. Tucked away on a private road, this inviting retreat offers the perfect blend of vintage character and peaceful seclusion.Set on an expansive 0.34-acre lot, the property provides space to breathe, relax, and enjoy the natural surroundings--complete with a picturesque seasonal creek that runs through the property, adding a tranquil, storybook setting during the wetter months.Inside, approximately 900 square feet of thoughtfully designed living space welcomes you with a warm and cozy living room centered around a classic brick fireplace--perfect for crisp mountain evenings. The main level features an open living, kitchen, and dining area, along with a comfortable bedroom and a full bathroom, offering convenient single-level living.Upstairs, you'll find a second bedroom plus a spacious loft-style sleeping area, ideal for guests, a creative studio, or additional lounging space.Whether you're searching for a weekend getaway, full-time mountain home, or investment opportunity, this rare downtown gem delivers location, character, and charm in one unique package.Don't miss your chance to own a piece of Idyllwild's history--schedule your private showing today and experience the magic for yourself.

Map Location

Listing provided courtesy of Ashley Stewart of Idyllwild Realty. Last updated 2026-04-29 08:36:51.000000. Listing information © 2026 CRMLS.

john Doe

Jaime Sanford

DRE# 123456789
Inquire Now
Real estate https://static.royacdn.com/Site-48750597-fad4-4739-909d-ca390a15c8e5/theme1/realtor.jpg realtor # # # https://static.royacdn.com/Site-48750597-fad4-4739-909d-ca390a15c8e5/theme1/realtor.jpg 484 Lake Park Ave., Suite 280 Oakland, CA 94610 2603 Camino Ramon Suite 200 San Ramon, CA 94583 5102250470 9168229655 8183348266