Property Detail

21732 Exton

Lake Forest CA 92630

$2,099,000

Status: Active

Property Details

Description

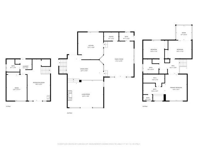
Versatile three-level layout with two private suite configurations, owned solar, and a backyard pool Set on a generous Lake Forest lot, this 5-bedroom, 4-bath, ~3,600 sq ft home is organized across three distinct living levels with two separate suite configurations — each with its own private entry, full bathroom, and living space. The main level centers on a vaulted formal dining room that seats twelve, opening to a sunken living room with fireplace and walls of windows. A separate eat-in kitchen anchors the level with a center island, granite counters, six-burner gas cooktop, double ovens, built-in microwave, dishwasher, and built-in trash and recycling — flowing into the family room with French doors to the backyard. Adjacent to the kitchen, a vaulted in-law suite offers flexible living with its own private exterior entrance, attached 1.75 bath, and a full pantry with refrigerator (easily configured as a kitchenette). A connecting window keeps the suite integrated when desired, fully independent when not — ideal as a guest suite, long-term-stay quarters, home office with separate access, or studio living. The lower level functions as a second self-contained zone: a den with fireplace, wet bar, bedroom, full bathroom, and direct access to both the garage and exterior. Effectively a guest suite paired with its own gathering space. The upper level houses the primary suite with dressing area, walk in closet, and double-vanity bath with linen storage, plus two secondary bedrooms — one with an attached bonus space well-suited as a study, nursery, or sitting room. Outside: private pool, in-ground spa, rock waterfall, and multiple patio zones surrounded by mature landscaping with timed drip irrigation on a ~20,800 sq ft lot. Owned solar (paid off). PEX repipe in 2023. Central A/C, two fireplaces, double-pane windows, wooden shutters, three-car garage. Saddleback Valley Schools (Rancho Canada / Serrano / El Toro). $70/mo HOA.

Map Location

Listing provided courtesy of Amanda Sturges of Coldwell Banker Realty. Last updated 2026-04-26 08:20:21.000000. Listing information © 2026 CRMLS.

john Doe

Jaime Sanford

DRE# 123456789
Inquire Now
Real estate https://static.royacdn.com/Site-48750597-fad4-4739-909d-ca390a15c8e5/theme1/realtor.jpg realtor # # # https://static.royacdn.com/Site-48750597-fad4-4739-909d-ca390a15c8e5/theme1/realtor.jpg 484 Lake Park Ave., Suite 280 Oakland, CA 94610 2603 Camino Ramon Suite 200 San Ramon, CA 94583 5102250470 9168229655 8183348266